Investment Projects Implemented by the North-Eastern Basin Branch
Projects Planned and Being Implemented by the North-Eastern Basin Branch
- Seaport of Anadyr
- Seaport of Vanino
- Seaport of Pevek (Chukotka Autonomous District)
- Vanino urban village
Investment Projects Implemented by the North-Eastern Basin Branch
One of the main activities of the FSUE “Rosmorport” North-Eastern Basin Branch is implementation of federal investment programs, as well as capital investment programs of FSUE “Rosmorport”, aimed at development of federal facilities of port infrastructure in the seaports of Anadyr, De-Kastri, Magadan, Nikolaevsk-on-Amur, Okhotsk, Pevek, Sovetskaya Gavan, and Vanino.
In this aspect, since 2003 to the present time the North-Eastern Basin Branch within implementation of the construction customer’s functions has completed the following investment projects aimed at improving port infrastructure and the quality of services rendered to ship owners, cargo shippers and other consumers in the seaports.
Seaport of Vanino
In 2011, the first stage of reconstruction of the vessel traffic management system in the seaport of Vanino aimed at increasing the seaport Vanino VTS coverage area, was performed. According to the results of completed construction and installation works, a radio technical post was constructed in the Muchka Bay, obsolete equipment and software were replaced, which allowed to increase the reliability of the system and include the Muchka Bay waters in the seaport of Vanino VTS coverage area.
In 2012, the second stage of reconstruction of vessel traffic management systems in the seaport of Vanino, aimed at increasing the seaport Vanino VTS coverage area, was performed. According to the results of completed construction and installation works, a radio technical post
was constructed on Kekurnaya hill, which allowed to create a system of communication with vessels on distant approaches to the seaport of Vanino and extend the seaport of Vanino VTS area by covering the seaport of Sovetskaya Gavan.
|
In 2014, project of reconstruction of the Global Maritime Distress and Safety System facilities in A1 and A2 sea areas on the approaches to the seaport of Vanino was completed. Implementation of the project, which was aimed at modernization of obsolete equipment, elimination of interference in functioning of the equipment in A1 sea area of the seaport of Vanino water area, expansion A2 sea area equipment operation area, enhanced the quality of GMDSS operation in the Tatar Strait.
|
|
|
|
In December 2020, in accordance with the permission of Rosmorrechflot № 27-RU27504000-ZD-39/91-2020 dated December 30, 2020 the constructed operational water areas of berths № 1 and № 2 of the transshipment complex and the water area of the turning spot with a total area of 28.7 ha and the bottom mark of -19.3 meters, intended for maneuvering and movement of vessels, were put into operation, which allowed to carry out vessel calls and safe mooring of vessels of SN-115 type with the length of 247 meters, width of 40.8 meters and draught in cargo of 15.25 meters to the berths of the transshipment complex. At the same time, an anchorage area of 1.1 thousand ha was organized with depth marks from -23 to -33 meters, where vessels of SN-163, SN-115, SN-70 and SN-40 types with a length of no more than 266 meters, a width of 44 meters and a draught in cargo of 16.5 meters can safely moor.
|
|
In December 2023, in accordance with the permission of Rosmorrechflot dated December 20, 2023 No. 27-04-BT-39/93-2023-FAMRT, the operational water area of berths of the transshipment complex and the water area of the turning spot with a total area of 30.8 ha and depth marks of the water area of berth No. 1: -19.3 m, of the water area of berth No. 2 and the turning spot: - 19.8 m, designed for the safe maneuvering and movement of design vessels of SN-163, SN-115, SN-70 and SN-40 types with a length of no more than 266 meters, a width of 44 meters and a draught in cargo of 16.5 meters. Upon completion of this project, vessels with a deadweight of up to 130 thousand tons will be able to approach and safely moor to the coal terminal berths, which will ensure coal transshipment at the coal terminal’s capacity of up to 12 million tons per year.
|
In 2014 the project for construction of facilities of GMDSS A1 sea area on approaches to the seaport of De-Kastri and VTS in the seaport of De-Kastri was completed. The project implementation allowed to implement the provisions of the International Convention for the Safety of Life at Sea, 1974, in order to improve maritime safety in the seaport of De-Kastri water area, primarily, the safety of navigation of tankers with oil cargoes proceeding from roadsteads locations where vessels are loaded in the seaport of De-Kastri.
|
|
|
|
|
Projects Planned and Being Implemented by the North-Eastern Basin Branch
Currently, within the implementation of federal target programs, as well as own programs of capital investments for port infrastructure facilities development in the seaports of Anadyr, De-Kastri, Magadan, Nikolaevsk-on-Amur, Okhotsk, Pevek, Sovetskaya Gavan, and Vanino, the North-Eastern Basin Branch is implementing the following investment projects in the form of capital investment in coastal and port infrastructure facilities:
- project for the reconstruction of passenger berth No. 7
in the seaport of Anadyr. The reconstruction project envisages changing the berth arrangement and constructing a checkpoint. After the reconstruction of passenger berth No. 7, a ferry and passenger terminal will be created, consisting of 4 berths: cargo and passenger ferry berth No. 1.4 with a length of 51 m, a width of 10 m and depth at the pier abutment of 5.1 m; passenger berth No. 1.3 with a length of 66 m, a width of 10 m and depth at the pier abutment of 5.1 m; cargo and passenger ferry berth No. 1.2 with a length of 51 m, a width of 10 m and depth at the pier abutment of 5.1 m; and cargo ferry pier No. 1.1 with the length of 61 m, a width of 10 m and depth at the pier abutment of 5.1 m, as well as of the checkpoint building. As a result of the reconstruction, the total length of the mooring front will be increased to 224 m, which will allow servicing cargo and passenger vessels with a length of up to 43 m, a width of up to 10.4 m and a loaded draught of up to 4 m, thereby ensuring passenger traffic of 20 thousand people in navigation period, cargo traffic of 4.2 thousand motor cars and 1.8 thousand trucks in navigation period.
Subject to the receipt of a positive conclusion of the state expertise and a construction permit, as well as the allocation of the necessary funding, the start of construction and installation work is scheduled for 2026.
|
|
|
- project for the reconstruction of coastal structures
of the automobile and railway ferry service Vanino–Kholmsk in the seaport of Vanino. The project for the reconstruction of the existing ferry complex envisages the reconstruction of the frameworks of the linkspan bridges located at berths No. 14 and No. 14a, which will allow serving vessels of CNF11CPD-LMPP-110/5 type with a length of 131 m, a width of 20.32 m, a loaded draught of 6.6 m, an estimated capacity of 30 wagons or 71 motor cars, and a passenger capacity of 150 people. The implementation of the project will significantly improve passenger and transport ferry service between Sakhalin and the mainland of the country, considering the social and economic importance of the Vanino–Kholmsk ferry crossing for the island.
Based on the positive conclusions of the state examinations, Rosmorrechflot issued a construction permit dated 04.12.2023 No. 27-04-BT-39/87-2023-FAMRT.
Information on the implementation of the project is available in the section “Port Infrastructure Facilities”.
|
|
|
- a project for building the second phase of a transport hub in the seaport of Vanino, in the Muchka Bay. According to the investment project in terms of the enterprise's obligations it is supposed to carry out dredging works in order to create maneuvering zones for vessels near the planned pier No. 5a of the seaport of Vanino with bottom elevations of -17.8 meters on an area of 23.9 hectares, which will allow to carry out safe maneuvering and approach to pier No. 5a of design vessels of SN-210 type of 300 meters length, 50 meters width and draft in cargo of 15.4 meters, as well as install the necessary navigation equipment. The implementation of the project will help increase the capacity of the transport hub for coal transshipment of the amount till 40 million tons per year. The design documentation developed by a specialized organization and the environmental impact assessment of the planned activity were presented for public discussion as prescribed. Following their consideration (minutes of public hearings dated August 19, 2021, approved by Head of the Administration of the Vanino Municipal District, the Khabarovsk Territory), the public hearings were recognized as valid. Taking into account the opinions expressed during the discussion, the design documentation was revised and submitted for consideration by the state environmental expertise. Following the consideration of the submitted documents, a positive conclusion No. 27-1-01-1-07-0022-22 from the expert commission of the state environmental expertise was received, approved by the order of the Black Sea and Azov Marine Administration of Rosprirodnadzor dated March 25, 2022 No. 125-O. The results of engineering surveys and design and estimate documentation were submitted for consideration to FAI “Glavgosexpertiza of Russia”.
In case positive conclusion of the state expertise is received, and necessary finances are allocated, the construction and installation works are to start in 2026.
![]() |
- a project for building a terminal for transshipment of alumina ore mineral in the seaport of Vanino under the joint investment project . Under the investment project in the chapter of liabilities, the enterprise is planning to carry out dredging operations in the operational water area in the seaport of Vanino in the area of 15 ha to bringing the seabed level to minus 13.6 m in order to assure navigational depths for safe approach and mooring of SN-163, SN-115, SN-70 and SN-40 vessels with deadweight of 35.000-40.000 tons (292 m in length, 45 m in breadth and 17.1 m in load draught) and also install two Kolonna marine lights, replace a marine light on Berth No 3 and install a temporary marine light on Berth No 1. The implementation of the project will allow for creating a modern sea terminal for transshipment of alumina ore mineral. On the first stage it will transship alumina ore mineral in the amount of 1.5 million tons and in full development in the amount of 3 million tons. According to the established procedure under project documentation, public hearings have been held to discuss the project, including its impact on the environment. Based on the results of the hearings (the protocol approved by the Main Administration of the Vanino Municipality October 17, 2017 and the protocol approved by the acting head of the Vanino Municipality July 3, 2018) the presented materials on the impact on the environment have been approved. Based on the results of the state environmental examination, the project documentation received a positive conclusion from the state expert commission as of 18.01.2019, approved by order of the Pacific Maritime Administration of Rosprirodnadzor No. 21 as of 18.01.2019. The results of engineering surveys and design documentation are submitted in accordance with the established procedure to FAI "Glavgosexpertiza of Russia". According to the results of their consideration, a positive conclusion of the state examination No. 27-1-1-3-0136-19 as of 17.09.2019 was received. At the same time, a positive conclusion No. 01143-19/GGE-17217/07-01 as of 20.09.2019 on determination of the reliability of the estimated cost of the capital construction facility was received from FAI "Glavgosexpertiza of Russia". The design documentation and results of engineering surveys of the coastal part of the project presented in FAI "Glavgosexpertiza of Russia" also received a positive conclusion from the state expertise.
In case a construction permit is received and necessary finances are allocated, the construction and installation works are planned to start in 2026.
![]() |
- a project for construction of the building of safety navigation services of the FSUE “Rosmorport” North-Eastern Basin Branch. Under the project, a three-floor administrative-and-technical building is planned to be constructed with the total area of 1.335 square meters. The implementation of the project will allow for compactly placing structural units of the North-Eastern Basin Branch by improving welfare of the personnel in order to increase the effectiveness of its work. Based on the design results, environmental impact assessment materials and design documentation are submitted for public discussion in accordance with the established procedure. According to the results of the discussions (minutes of the Administration of the urban settlement "Vanino worker's settlement" of the Vanino municipal district of the Khabarovsk Territory as of 14.10.2019), environmental impact assessment materials were generally approved. In accordance with the legislation of the Russian Federation in the field of environmental expertise (Article 11 of the Federal Law No. 174-FZ as of 23.11.1995 "On Environmental Expertise"), state environmental expertise regarding the project for the construction of a building for navigation security services is not required. The results of engineering surveys and design documentation previously submitted for consideration by the state examination were returned to the Far Eastern Branch of FAI "Glavgosexpertiza of Russia" for revision in terms of the need to adjust the estimated cost of construction. As a result of the revision, the updated design documentation and the results of engineering surveys are submitted to FAI “Glavgosexpertiza of Russia”. The re-submitted materials received a positive conclusion of the state re-examination No. 27-1-1-3-029679-2021 as of 07.06.2021, including verification of the reliability of determining the estimated cost of the capital construction facility, approved by FAI “Glavgosexpertiza of Russia”. Due to the change in the cost of construction materials, the project documentation required some adjustments in terms of the estimated cost of the project. The revised estimate documentation for the project was submitted as prescribed to FAI “Glavgosexpertiza of Russia” to be reviewed for its reliability. Upon consideration, a positive conclusion was received from the follow-up state expertise, including verification of the reliability of determination of the capital construction project estimated cost, dated 14.07.2023 No. 27-1-1-2-040344-2023, approved by FAI “Glavgosexpertiza of Russia”, which established the reliability of determination of the construction estimated cost.
Based on the positive conclusions received from state examinations, the Administration of the urban settlement “Vanino worker's settlement” of the Vanino municipal district of the Khabarovsk Territory issued a construction permit dated 19.06.2024 No. 27-04-364-2024.
![]() |
- project for the reconstruction of pier No. 18 of the seaport of Vanino. The reconstruction project provides for the restoration and improvement of the operational characteristics of the existing, physically worn out berth No. 18 of the seaport. The implementation of the project will allow using the berth to accommodate vessels of the port fleet of the FSUE "Rosmorport" North-Eastern Basin Branch, as well as carry out loading and unloading operations at the berth with general cargo on vessels of up to 92.4 meters length, up to 18 meters width and 7.5 meters draft in cargo. As prescribed, the design organization held public hearings to discuss the design documentation, including environmental impact assessment materials. Following the discussion, the presented papers were approved taking into account the comments and suggestions made by residents of the district (minutes of public hearings dated 17.09.2021, approved by Head of the Vanino Municipal District). The developed design documentation and the results of engineering surveys were submitted as prescribed to the Federal Service for Supervision of Natural Resources (Rosprirodnadzor) for review. Upon consideration, a positive conclusion of the state environmental expertise dated 26.05.2023 No. 27-1-02-1-07-0371-23, approved by the order of Rosprirodnadzor dated 26.05.2023 No. 1345/GEE, was received. Currently, the design documentation and the results of engineering surveys have been submitted to FAI “Glavgosexpertiza of Russia” for consideration.
In case a positive conclusion of the state expertise and a construction permit are received and necessary finances are allocated, the construction and installation works are to start in 2026.
|
|
- project for the reconstruction of pier No. 1
in the seaport of Vanino. The reconstruction project envisages the restoration and improvement of the operational characteristics of the existing pier No. 1 in the seaport. After the reconstruction, the crib structure of the pier will be replaced with a modern structure of an inter-anchored tongue-and-groove bulkhead with a lock profile, the length of the pier will be increased to 164 m, the width — to 26 m and the depth at the pier abutment — to 12.35 m. The implementation of the project will allow the pier to be used to accommodate icebreakers of the enterprise and vessels of the port fleet of the branch with a length of up to 126 m, a width of up to 18.6 m and a loaded draught of 10.9 m. After the reconstruction, it will also be possible to carry out loading and unloading operations with general cargo at pier No. 1.
Currently, the design organization is carrying out design and survey work. Subject to successful completion of the work, receipt of positive conclusions from state examinations and a construction permit, as well as the allocation of necessary funding, the start of construction and installation work is scheduled for the 3rd quarter of 2025.
|
|
|
Seaport of Pevek (Chukotka Autonomous District)
- project for the construction of Global Marine Distress and Safety System (GMDSS) facilities along the Northern Sea Route. The construction project involves the construction of the Pevek coastal station of the NAVTEX service consisting of a control center, a radio transmitting station, and a line-of-sight radio relay line for data transmission between the control center and the radio transmitting station. The implementation of the project will allow to provide information transfer to vessels in order to ensure safety of navigation on the Northern Sea Route routes of the NAVAREA XXI area. The project documentation developed by a specialized organization received a positive conclusion of the State Expertise dated 25.07.2022 No. 87-1-1-3-050095-2022, including an examination of the reliability of determining the estimated cost of construction, approved by the FAI “Glavgosexpertiza of Russia”. According to the results of the State Examination, the Department of Urban Planning and Architecture in the Department of Industrial, Agricultural Policy, Construction and Housing and Communal Services of the Administration of the Pevek urban District issued a construction permit dated 08.08.2022 No. 87-02-05-2022.
|
|
|
|
|
|
Vanino urban village
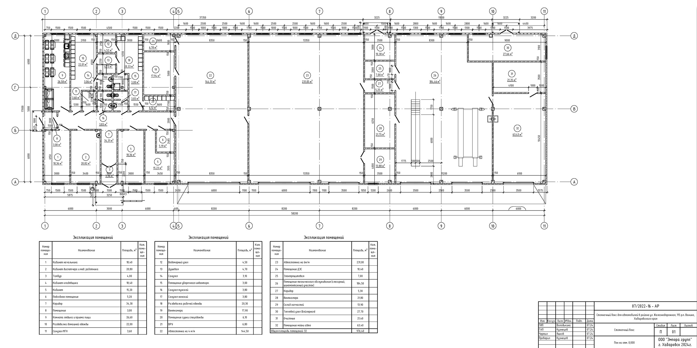
- project for the construction of a parking garage
in the village of Vanino. The project envisages the construction of an administrative building with heated parking garages, being a one-storey building with a total area of 987.7 sq. m. The implementation of the project will allow it to accommodate personnel and vehicles of the FSUE “Rosmorport” North-Eastern Basin Branch which will help to upgrade maintenance and repair of vehicles of the North-Eastern Basin Branch, improve the environment and living conditions for employees of the branch and the safety of storing cars used by the branch for its activities in the seaport of Vanino.
Currently, the design organization is carrying out design and survey work. Subject to successful completion of the work, receipt of positive conclusions from state expertise and a construction permit, as well as the allocation of necessary funding, the start of construction and installation work is scheduled for the 3rd quarter of 2025.
|
|




















